Twee zienswijzen tegen bestemmingsplan Nijkerkerveen-Vrouwenweg

20 jan 2014, 12:56Knipsels
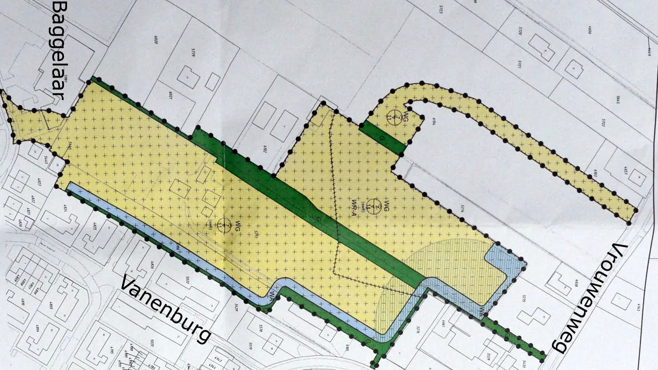
hd4je87fy6326746jpgqwnyy2 nijkerkerveen deelplan 2 eerste fase
Er zijn twee zienswijzen ingediend tegen het ontwerp-bestemmingsplan Nijkerkerveen Deelplan 2, eerste fase. Dat omvat de bouw van woningen in het gebied tussen de Vrouwenweg, Van Dijkhuizenstraat, Vanenburg en de terreinen van Veensche Boys.
De zienswijzen hebben met name betrekking op een goede ontwatering van het gebied rondom de bestaande woningen, aangezien de nieuwbouw een meter hoger komt te staan en de ontsluitingsweg dertig centimeter boven maaiveld komt te liggen. Het betreffende gebied kent veel waterproblemen. Eventuele bezwaren konden tot 15 januari jl. worden ingediend.
In de eerste fase van het bouwplan worden 75 woningen gerealiseerd, verspreid over vijf jaar. Ieder jaar worden vijftien rijwoningen worden gerealiseerd. Na vijf jaar wordt het tweede deel van het bestemmingsplan in uitvoering gebracht, het gebied tussen Veensche Boys en de Vrouwenweg. Ook hier staan gezien de marktontwikkelingen voorlopig alleen rijwoningen en geschakelde woningen gepland. Het gebied krijgt een ontsluitingsweg aan de Vrouwenweg. Gezien de aanwezigheid van een agrarisch bedrijf in de hoek van de Vrouwenweg-Van Dijkhuizenstraat (bij Van den Brandhof) is een milieucirkel getrokken waarbinnen niet gebouwd mag worden.
bijdrage van Kees van den Heuvel
loading

Loading articles...

Loading