
Uitzicht is geen eeuwigdurend recht.
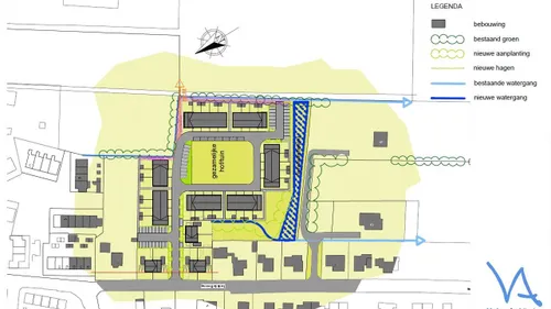
Dat zei Hilbrand Rozema (CU-SGP) en vatte daarmee in grote lijnen de mening van de raad over de bouw van woningen op het Filippoterrein en het weiland daarnaast. Er komen vrije sectorwoningen plus 29 sociale woningen waarvan 20 met alles op de begane grond.
De insprekers hebben allemaal hun eigen argumenten om tegen de bouw van woningen in het weiland achter het Filippoterrein te zijn. De problemen zijn eerder verwoord voor de camera van nijkerk.nieuws.nl
. Tegenstander Den Hertog sprak van een grote bestuurlijke ommezwaai met betrekking tot het weiland, omschreven als kwetsbare natuur. De gemeenteraad schreef in de structuurvisie van 2014 voor behoud van het landschap en kiest nu voor woningbouw. Dat kon volgens hem helemaal niet
Het waterschap gaf aan van alles te gaan doen om de wateroverlast tegen te gaan. Het waterschap is begonnen met metingen om later een optimaal systeem te kunnen bouwen. Het voorstel daarvoor zal er in de tweede helft van dit jaar liggen.
Maar bij de insprekers waren er ook voorstanders, zoals mevrouw Van Soeren, die het plan van harte ondersteunt. Ze raadt de tegenstanders aan niet naar de Raad van State te gaan, want gebouwd zal er worden en voor senioren kan dat niet vlug genoeg. Toonen (WSN) was blij, dat - na ruim 11 jaar overleg - men nu zover is, dat WSN over een poos kan gaan bouwen. Er is grote behoefte aan sociale woningbouw vooral voor kleine huishoudens en voor senioren. Daarom wil de WSN levensloopwoningen.bouwen. Toonen: "Als het aan de WSN ligt, pakken we nu door." Hij zei ook nog, dat de WSN met de 8 omwonenden heeft gesproken en "ze willen allemaal wat anders."
Raadsbreed is men voor het voorstel van het college om de WSN te laten bouwen op het Filippoterrein en het weiland daarachter..Alleen het CDA had in het begin nog twijfels.
Er werd uitvoerig gepraat over het afwijken van de structuurvisie uit 2014. Wethouder Oosterwijk daarover: "Er moet een goede juridisch argumentatie moeten komen om af te kunnen wijken van die structuurvisie. Die argumentatie komt bij het bestemmingsplan".
Een ander onderwerp was de waterhuishouding, maar de raad nam genoegen met de toezeggingen van het waterschap.
Er zijn drie mogelijkheden. Bij de eerste blijft het een bedrijventerrein. Dat wil niemand. In de tweede variant wordt gekozen voor een compacte bouw, waarbij het weiland weiland blijft. Daar was geen van de partijen voor. Ook het CDA schaarde zich namelijk uiteindelijk achter het voorstel van het college. In de raadsvergadering volgende wek zal er nog over gesproken worden, maar het moet wel heel gek gaan, als de raad het voorstel niet aanneemt.





